Proje Bilgisi
- Kategori: Eski Yapılar
- Proje İşbirliği: Kavaklıdere Belediyesi
- Proje Tarihi: 2017
Proje Açıklaması
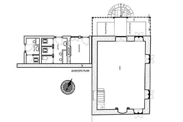
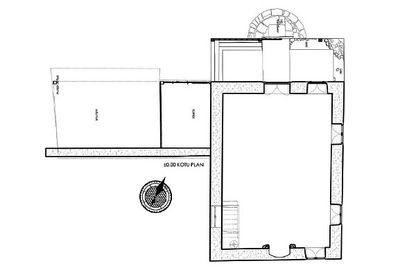
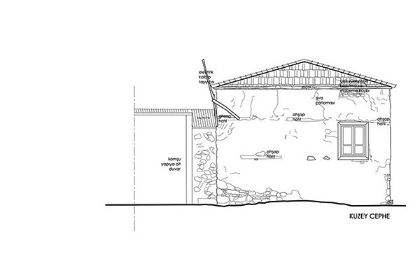
Muğla’nın Kavaklıdere ilçesi, Çayboyu beldesine bağlı Derebağ mahallesinde (Köyü) bulunmaktadır. Çayboyu merkeze takriben 7 km mesafededir. Bu mahalleye ulaşım kolay olup Camiinin bulunduğu mevkiden Aydın-Çayboyu ana yoluna mesafesi takriben 3,5km dir. Derebağ bulunan Mescidin yapım tarihi kesin olarak bilinmemekle birlikte 21 yy. başlarında yapıldığı, iki defa tamirat gördüğü mahalle sakinleri tarafından sözlü olarak ifade edilmiştir. Mescid kenarında bir misafir odası, tuvalet olduğu ve zaman içinde yıkıldığı yine aynı sözlü kaynaklardan öğrenilmiştir. Dikdörtgen formda olan mescit, son cemaat yeri ve harimden müteşekkildir. Mescid yaklaşık 11,55x6,10m ebatlarında olup yığma taş kagir tarzında inşaa edilmiştir. Mescid kırmaçatılı olup üst örtüsü marsilya tipi kiremitle kaplıdır. Mescide son cemaat mahaline 3 basamaklı yarım daire formunda merdivenle çıkılır. Son cemaat mahaline ahşap çıtalı çift kanat kapıdan girilir. Son cemaat yerinin tabanları ve tavanları ahşap olup etrafı seki ile çevrilidir. Son cemaat duvarının sağında kitabe sol tarafında ahşap kepenkli pencere bulunmaktadır. Bu halin parapet duvarları taş örgülü olup, seki üstü kaplaması ahşaptandır. Bu mahalin ön cephesinde üç adet ahşap direk vardır. Ahşap doğrama kapıdan girdiğimizde harime ulaşırız. Tabanı ahşap rabıta ve tavanı çıtalı ahşaptandır. Tavan göbeği yıldız formundadır. Yapının güneydoğu duvar ortasında mihrap, mihrabın sağ köşesinde ahşap minber ve sol tarafında bir adet ahşap doğrama pencere bulunmaktadır.
