Proje Bilgisi
- Kategori: Yeni Yapılar
- Sahibi: İşletme Fakültesi
- Proje Tarihi: 2009
Proje Açıklaması
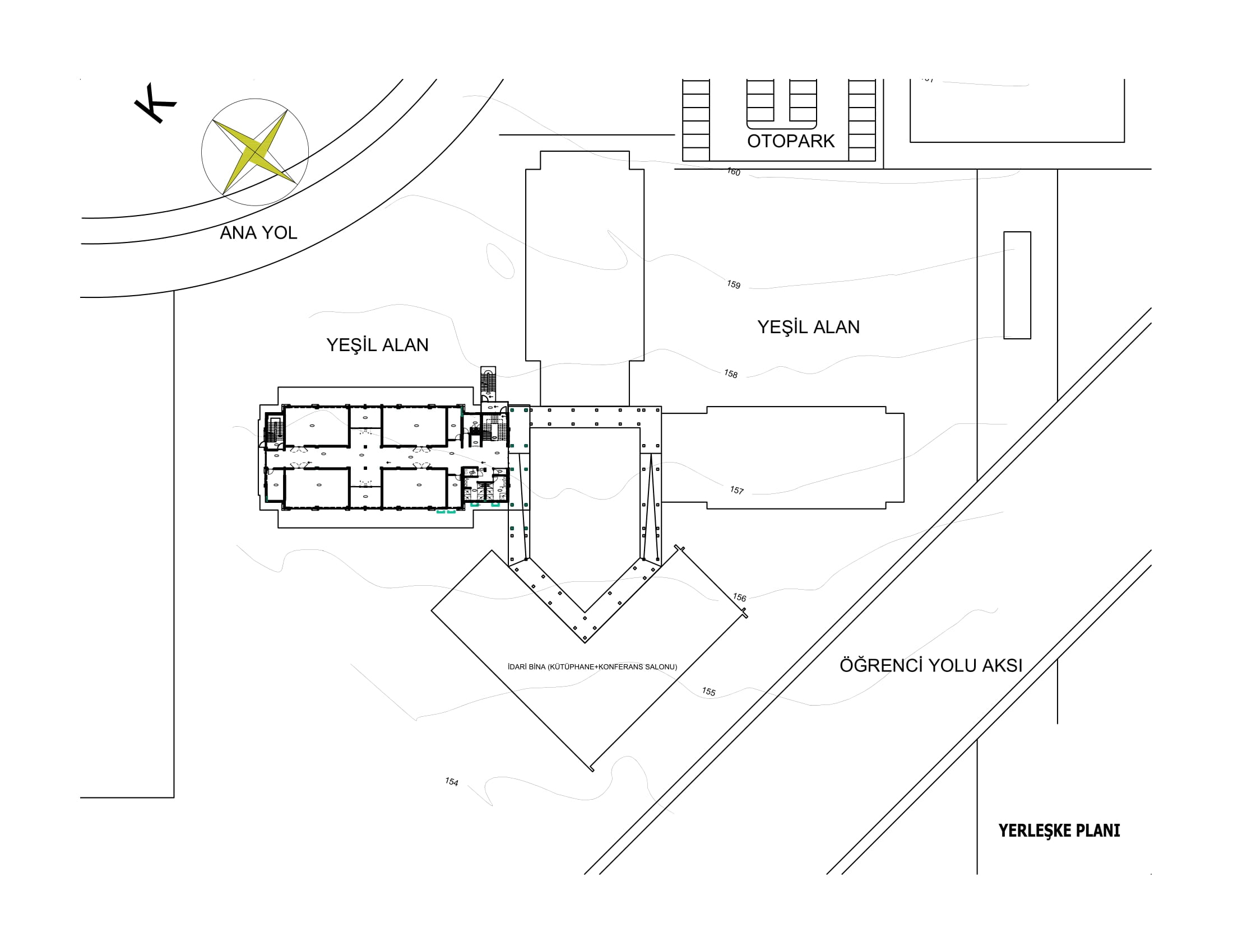
Bina Yan Dönmüş H formunda olup bir İç Avluya ve Birinci Katta Işıklığa sahiptir. Bu
düşüncenin sebebi Gün Işığı İhtiyacı olan tüm mekânların azami derecede bundan
faydalanmasını sağlamaktır. İç Avluya Zeminden Araç ile giriş imkânı mevcut olup
üstü Birinci Katta kapatılmıştır.
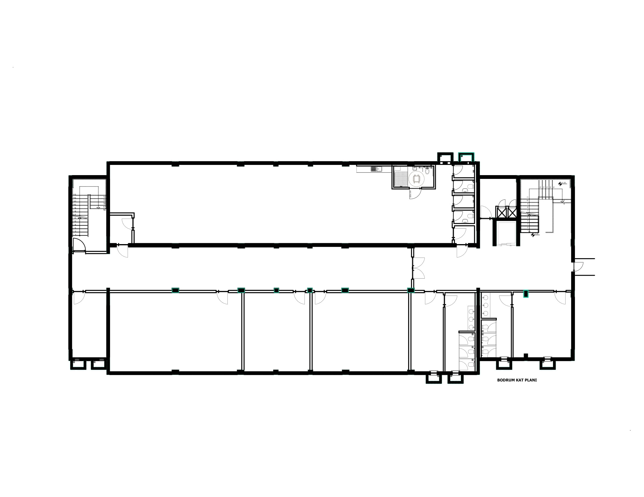
BODRUM KAT
Bodrum Katı Ana Depo olarak tasarlandı. Arka yoldan irtibatı sağlayan bir rampa ile
gelecek araçlar ürünlerini indirebilir. Ana Deponun içinde kalan Merdiven Evi ile de
Katlar arası irtibat sağlanır.
