Proje Bilgisi
- Kategori: Eski Yapılar
- Sahibi: Kavaklıdere Belediyesi
- Proje Tarihi: 2016
Proje Açıklaması
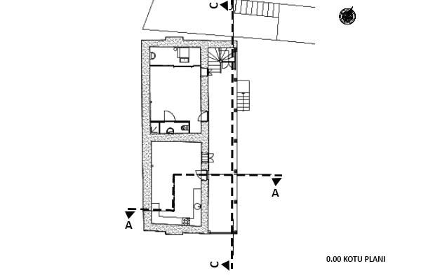
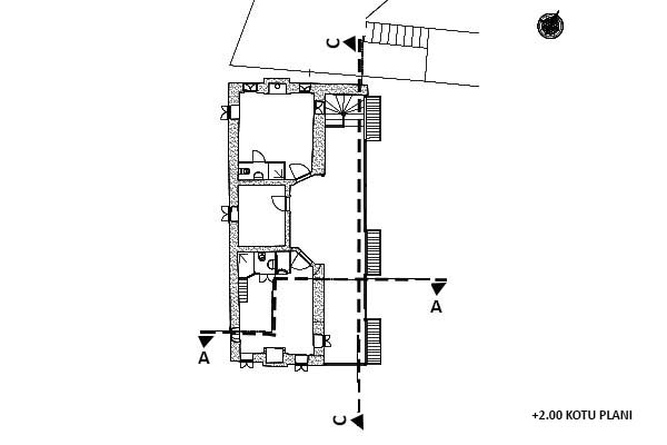
Muğla ili, Kavaklıdere ilçesi, Çayboyu mahallesi 15 pafta 1594 nolu parselde bulunan yapı günümüzde terk edilmiş durumdadır. Ancak öncesinde bölgede bulunan benzer yapılar gibi, özgün niteliğinde yakın bir tarihe kadar işlevini korumuştur. Tescilli yapının yapım yılı kesin olarak bilinmemekle birlikte yapıdan gelen izler binanın 19 YY. sonlarına işaret etmektedir. Yapı, genel olarak zemin katta bir adet açık sofa, yapının sağında ve solunda ahır olarak kullanılan iki adet odadan ibaret olmak üzere toplam üç mahalden müteşekkildir. Üst katta ise bir adet açık sofa ve 3 adet oda olmak üzere toplam dört adet mekandan oluşmaktadır. Yapının yakın zamana kadar konut olarak kullanıldığı anlaşılmaktadır. Restorasyon sonrası Belediye Kültür Evi olarak kullanılmaktadır.
