Proje Bilgisi
- Kategori: Yeni Yapılar
- Sahibi: M.S.K.Ü
- Proje Tarihi: 2016
Proje Açıklaması
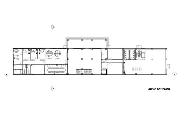
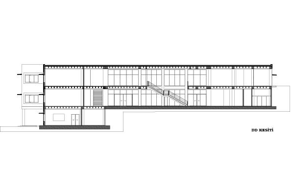
Muğla ili, Menteşe ilçesi, Kötekli mahallesi, Muğla Sıtkı Koçman Üniversitesi Kampüs Yerleşkesi içerisinde yer alan Turizm Fakültesidir.
Muğla ili, Menteşe ilçesi, Kötekli mahallesi, Muğla Sıtkı Koçman Üniversitesi Kampüs Yerleşkesi içerisinde yer alan Turizm Fakültesidir.