Proje Bilgisi
- Kategori: Eski Yapılar
- Sahibi: Dr. Ahmed Ünal Bozyer
- Proje Tarihi: 2018
Proje Açıklaması
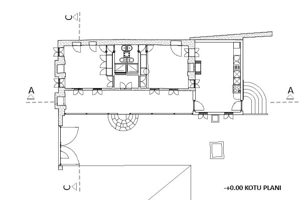
Muğla İli, Ula İlçesi, Alparslan Mahallesinde Dibektaşı Mevkiinde yer alan; tapunun 36 Pafta, 33 Ada, 38 Parsel numarasında kayıtlı taşınmazın üzerinde bulunan, tek katlı ev; Muğla Kültür Varlıklarını Koruma Bölge Kurulu’nun 16.12.2015 tarih ve 3852 sayılı kararı ile 2863 sayılı yasada tanımlanan özelliklere sahip olması nedeniyle Kültür ve Tabiat Varlıklarını Koruma Yüksek Kurulu’nun 05.11.1999 tarih ve 660 sayılı ilke kararı doğrultusunda II. grup korunması gerekli kültür varlığı olarak tescil edilmiştir. Muğla Kültür Varlıklarını Koruma Bölge Kurulu’nun 16.12.2015 tarih ve 3852 sayılı kararı ile II. grup yapı olarak tescillenen tek katlı Bozyer evinin içerisinde bulunduğu 33 ada, 38 parsel numaralı taşınmazın tescil kararı öncesi takriben 1989 yıllarında Ula 1/100 ölçekli Uygulama İmar planına uygun olarak yola terki yapılmıştır. Yapılmış olan yol terki işlemi ile taşınmazın içerisinde bulunan tek katlı ev (II. grup yapı olarak tescili yapılan)’in bir kısmı yolda bırakmaktadır. Bu konuyla ilgili Ula Belediyesi Kültür Varlıklarını Koruma Kuruluna Tescillin kaldırılması hususunda başvuruda bulunmuş ve Koruma Kurulu bu konuda tescilin devamı kararını almıştır. Tescilli yapının yolda kalan kısmının yıkılmaması ve korunabilmesi için bahse konu taşınmazın yola terk edilen kısmının tescilli yapıyı parsel sınırları içerisine dahil edecek şekilde yoldan ihdas edilmesi için gerekli olan plan değişikliği önerisi Belediyeye Ekim 2018 tarihinde sunulmuştur. Konut olarak inşa edilen yapıda uzun süre yaşanmaması sebebiyle önemli ölçüde deformasyon gözlenmiştir. Bozyer Evi’nin plan şeması ve cephe özellikleri özgünlüğünü koruyarak günümüze ulaşmayı başarmıştır. Bugün yapılan müdahaleler yapının özgün ahşap elemanlarını ve niteliklerini ortaya çıkararak Bozyer Evi’ni gelecek nesillere ulaştırma hedeflidir.
Ula, Alparslan Mahallesi Bozyer Evi Restorasyon Projesi, 2018
196,00 m²
